Machine Won't Power On - 1100MX
Background
The idea of providing power to your machine seems simple: just plug it in. In reality, there are a number of other components used in order to provide power appropriately safety for you and the machine, including (but not limited to):
The main disconnect switch
Fuses and/or circuit breakers
Emergency stop switch/button
Separate latching circuits for the spindle and rest of the machine
Transformers, which change the electricity to the appropriate value
Even with all of these components, you can systematically locate nearly any problem with just a multimeter.
Tools
Digital multimeter
Twist Out the Emergency Stop Button
Reason: The Emergency Stop button is pushed in.
Twist out the Emergency Stop button and press the Reset button.
The Reset button doesn't illuminate until after you:
Twist out the Emergency Stop button.
Press the Reset button.
Reset the Building’s Mains Breaker
Reason: The shop or building’s mains breaker is turned off.
Examine the building’s breaker. If it's not already on, turn it on.
Using a digital multimeter, measure to inspect and verify that you have power at the outlet.
Inspect the Power Entering the Machine
Reason: The Main Disconnect switch is in the Off position.
Examine the Main Disconnect switch. If it’s not already in the On position, turn it on and try to take your machine out of reset.
Measure the voltage coming out of your Main Disconnect switch.
Identify the wires as indicated in the table.
If you measure the correct Vac, continue.
If you do not any Vac, you either have a loose wire or a faulty Main Disconnect switch.
Machine | Wires | Measure for… |
---|---|---|
1100M/MX | 102/N and 103 | 230 Vac nominal |

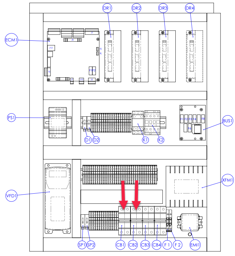
Reset the CB1 and/or CB2 Circuit Breaker
Reason: The CB1 and/or CB2 circuit breaker tripped.
Measure the wires as indicated below.
If required, power off the machine and reset the tripped breaker.
Machine | Wires (CB1 and CB2) | Measure for… |
---|---|---|
1100M/MX | 105 and 104/N and 107 and 106/N | 230 Vac nominal |

1100MX CB1 and CB2 Locations
Inspect the DC Power Supply (PS1)
Reason: The DC power supply PS1 is defective.
With a multimeter measure the Vdc between 400 and 401
If the digital multimeter reads below 22 Vdc, with a multimeter measure between 112/N and 113 for the input Vac.
If the input Vac is correct, replace the DC power supply.
Machine | Wires | Measure for… |
---|---|---|
1100M/MX | 400 and 401 | 24 Vdc nominal |
Machine | Wires | Measure for… |
---|---|---|
1100M/MX | 112/N and 113 | 220 Vac nominal |

1100M/MX PS1 Location
Inspect the K1 Contactor
Reason: The contactor K1 is defective.
Examine the K1 contactor’s red LED light. Depending on the state, do one of the following:
Red LED is On. This indicates that the contactor is latched. Use a digital multimeter to examine the power at K1-1 and wire 115.
Red LED is Off. Press and hold the Reset button and observe the LED on K1:
If it's on, K1 has a latching circuit issue.
If it's not on, K1 may have a coil issue.
Contactor K1 energizes the DC-BUS board, which provides 65 Vdc to the machine. K1 can fail by not energizing the coil, or the contacts could fail.