Site Requirements
In This Section, You'll Learn:
About the site requirements of this machine (including electrical and power requirements).
Before operating the machine in any way, you must read and understand this section.
General Site and Space Requirements
When choosing a location for your machine, you must verify that it meets all requirements outlined in this section.
Site Requirements
You must verify that the area:
Allows for unrestricted access to machine controls.
Conforms to the following:
Primary Power Required Single-Phase 230 Vac, 50/60 Hz
Recommended Circuit Amperage 30 A breaker
NOTE: For more information, see "Electrical and Power Requirements" (page 4).
Has clean, dry, compressed air.
Has one continuous slab sufficient to support the weight of the machine, accessories, and any additional equipment.
Is a dry, properly ventilated, and well-lit internal space that conforms to the following temperature and humidity requirements:
Operating Temperature Range 40°F-90°F (5°C-32°C)
Storage Temperature Range 30°F-100°F (-1°C-38°C)
Humidity Range 5%-95% (non-condensing)
Provides for unobstructed machine motion and operation.
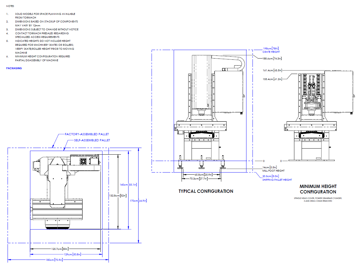
Space Requirements
The area must meet the following space requirements. Allow more space to access the rear of the machine for maintenance and repairs.
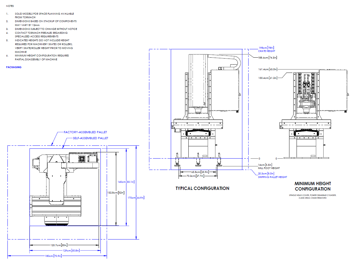
NOTE: For a detailed drawing of the space requirements, refer to the end of this chapter.
Machine Size 86" × 104" (2.2 m × 2.6 m)
Machine Height 94" (2.4 m)
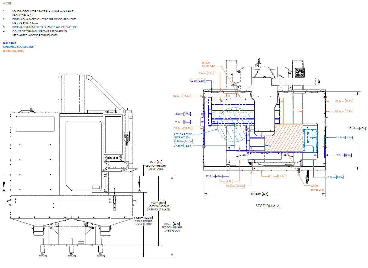
Operator Workstation Reference
The typical operator workstation is the area in front of the enclosure doors and the PathPilot operator console, as shown in the following image.

Figure 1: Example of the typical operator workstation.
For information on the machine controls, go to “System Basics”.
Electrical and Power Requirements
You must verify that the site conforms to the following electrical and power requirements.
Electrical Requirements
A certified electrician must make all electrical connections, and it's your responsibility to verify that the electrical installation of the machine meets all local regulations and electrical codes.
Primary Power Required Single-Phase 230 Vac, 50/60 Hz
Recommended Circuit Amperage 30 A breaker
Power Requirements
If the site conforms to the electrical requirements, verify that it meets the following power requirements:
No Electrical Noise Primary power must be provided by a dedicated circuit, which must be isolated from electrically-noisy devices like welders or plasma torches. The machine should be isolated from inductive loads from items like vacuum cleaners or air compressors.
No Ground Fault Circuit Interrupter Power for the machine must not be protected by a ground fault circuit interrupter (GFCI), as it interferes with the operation of the servo drives.
Proper Grounding You must properly ground the power input to the machine. Examine the continuity between bare metal on the machine frame and true earth ground (a water pipe or similar) to verify that it's properly grounded.
Correct Plug Pattern The machine is shipped with a NEMA L6-30P plug, designed for use with a NEMA L6-30R receptacle.
Air Requirements
Air Pressure 90-120 psi (620-825 kPa)
If the air supply is more than 120 psi (825 kPa), you must use a regulator.Air Volume For successive, back-to-back tool changes, at least 2 cfm at 90 psi is required.
Exact air volume depends on the frequency of tool changes.Dry Air We recommend using a compressed air dryer, desiccator, or filter between the air compressor and the machine.
Lubricated Air You must lubricate the air with air tool oil.
Use the pre-installed FRL Filter-Regulator-Lubricator for this purpose.
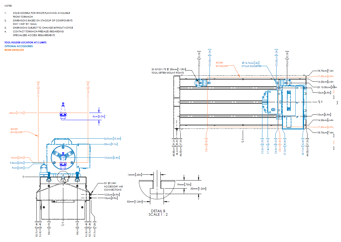
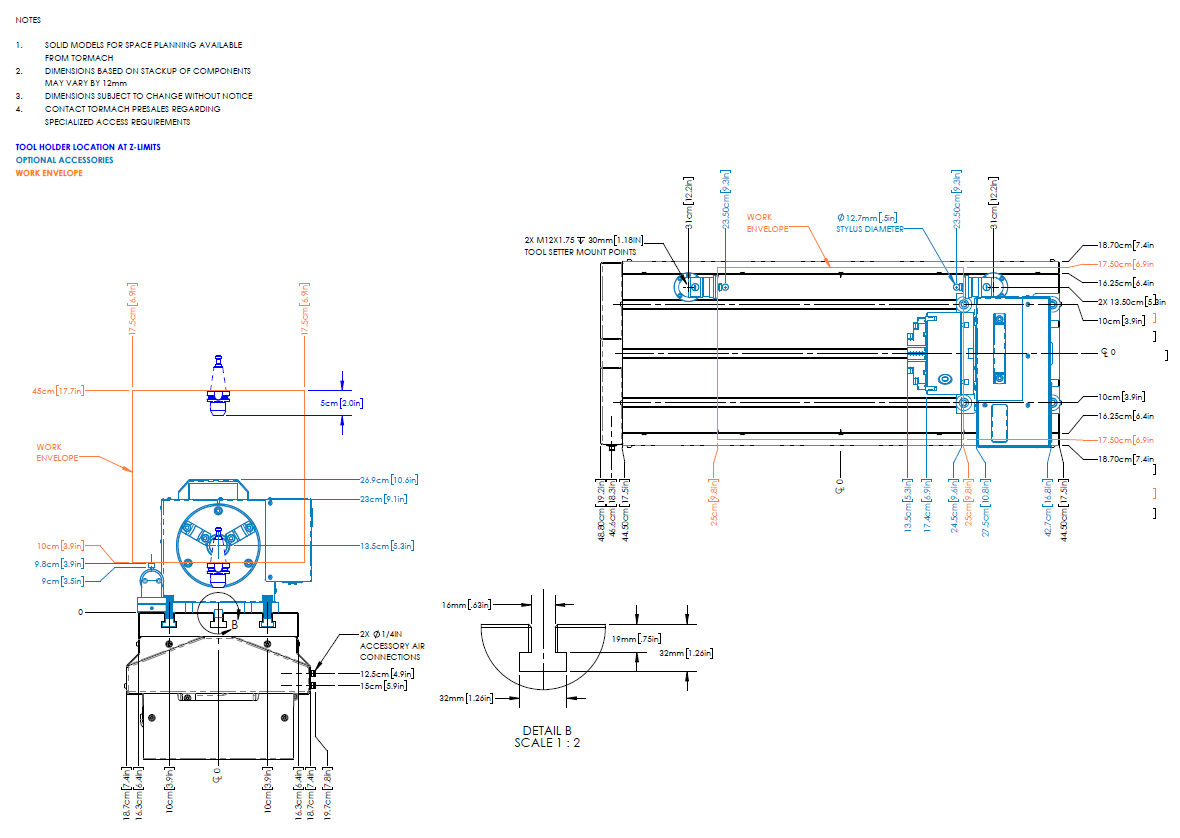
Space Planning Drawings
Space Planning


Minimum Transport Height

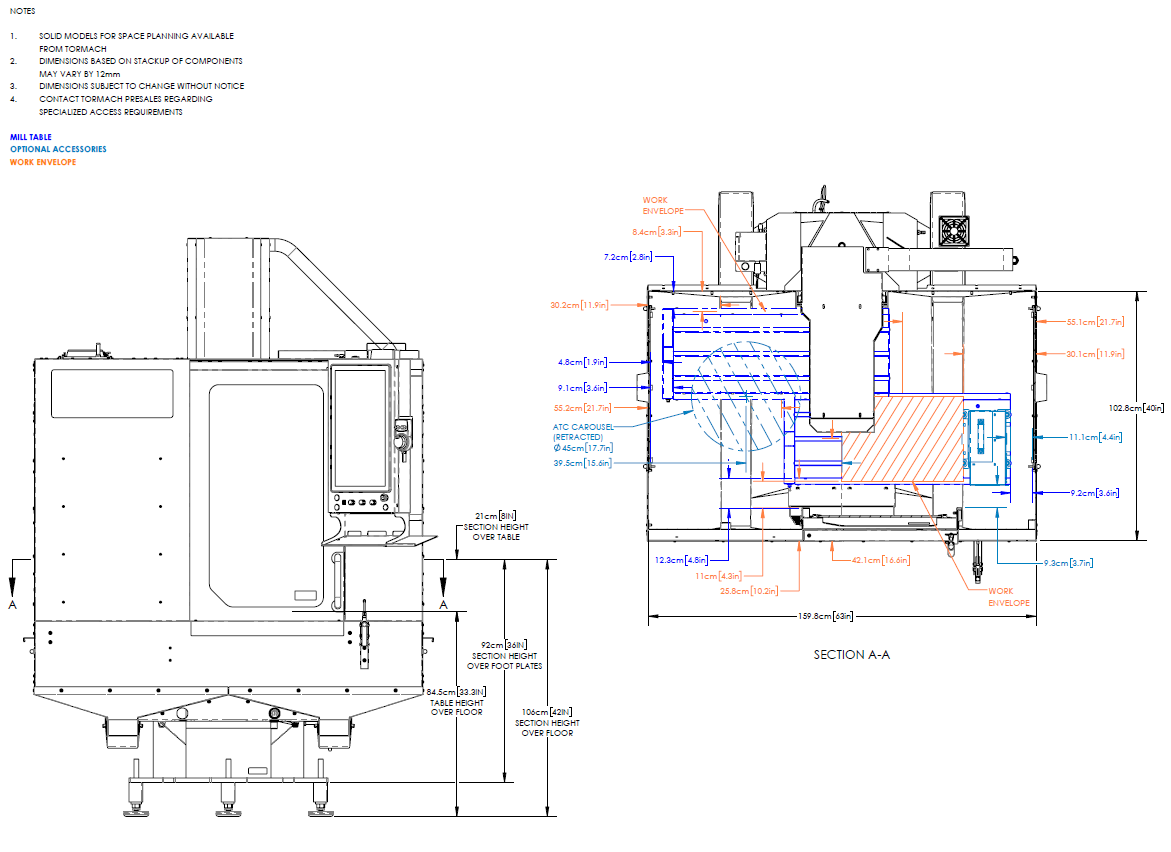
Table Clearance

Table Details

Electrical Site Plan Drawings
Electrical Site Plan

Looking for more information?
This is a section of the 1500MX operator's manual. To view the whole manual, go to Tormach document UM10811.
If you have additional questions, we can help. Create a support ticket with Tormach Technical Support at tormach.com/how-to-submit-a-support-ticket for guidance on how to proceed.