770MX (MF/MH Serials) Knowledge Base
Breadcrumbs

Machine Won't Power On - 770MX

Background

The idea of providing power to your machine seems simple: just plug it in. In reality, there are a number of other components used in order to provide power appropriately safety for you and the machine, including (but not limited to):

  • The main disconnect switch

  • Fuses and/or circuit breakers

  • Emergency stop switch/button

  • Separate latching circuits for the spindle and rest of the machine

  • Transformers, which change the electricity to the appropriate value

Even with all of these components, you can systematically locate nearly any problem with just a multimeter.

Tools

  • Digital multimeter

Twist Out the Emergency Stop Button

Reason: The Emergency Stop button is pushed in.

  1. Twist out the Emergency Stop button and press the Reset button.

The Reset button doesn't illuminate until after you:

  1. Twist out the Emergency Stop button.

  2. Press the Reset button.

Reset the Building’s Mains Breaker

Reason: The shop or building’s mains breaker is turned off.

  1. Examine the building’s breaker. If it's not already on, turn it on.

  2. Using a digital multimeter, measure to inspect and verify that you have power at the outlet.

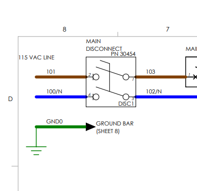
Inspect the Power Entering the Machine

Reason: The Main Disconnect switch is in the Off position.

  1. Examine the Main Disconnect switch. If it’s not already in the On position, turn it on and try to take your machine out of reset.

  2. Measure the voltage coming out of your Main Disconnect switch.

  3. Identify the wires as indicated in the table.

    1. If you measure the correct Vac, continue.

    2. If you do not any Vac, you either have a loose wire or a faulty Main Disconnect switch.

Machine

Wires

Measure for…

770M/MX

101 and 100/N

115 Vac nominal

image-20240130-173029.png
770M/MX Disconnect Switch

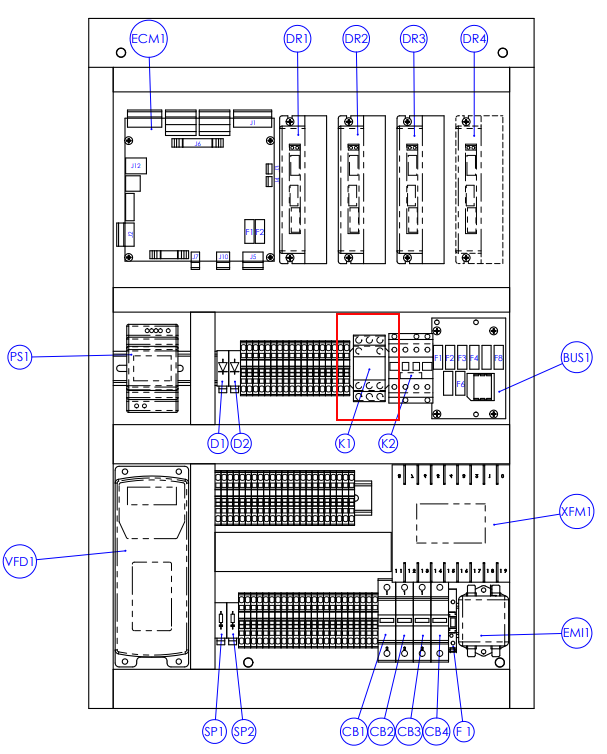
Reset the CB1 and/or CB2 Circuit Breaker

Reason: The CB1 and/or CB2 circuit breaker tripped.

  1. Measure the wires as indicated below.

  2. If required, power off the machine and reset the tripped breaker.

Machine

Wires (CB1 and CB2)

Measure for…

770M/MX

105 and 100/N

and

107 and 100/N

115 Vac nominal

image-20240130-173159.png
770M/MX Electrical Cabinet CB1 and CB2 Location


Inspect the DC Power Supply (PS1)

Reason: The DC power supply PS1 is defective.

  1. With a multimeter measure the Vdc between 400 and 401.

  2. If the digital multimeter reads below 22 Vdc, with a multimeter measure between 112/N and 113 for the input Vac.
    If the input Vac is correct, replace the DC power supply.

Machine

Wires

Measure for…

770M/MX

400 and 401

24 Vdc nominal

Machine

Wires

Measure for…

770M/MX

112/N and 113

115 Vac nominal

image-20240130-173304.png
770M/MX Electrical Cabinet PS1 Location

Inspect the K1 Contactor

Reason: The contactor K1 is defective.

  1. Examine the K1 contactor’s red LED light. Depending on the state, do one of the following:

    1. Red LED is On. This indicates that the contactor is latched. Use a digital multimeter to examine the power at K1-1 and wire 115.

    2. Red LED is Off. Press and hold the Reset button and observe the LED on K1:

      1. If it's on, K1 has a latching circuit issue.

      2. If it's not on, K1 may have a coil issue.

image-20240130-173450.png
770M/MX Electrical Cabinet K1 Location

Contactor K1 energizes the DC-BUS board, which provides 65 Vdc to the machine. K1 can fail by not energizing the coil, or the contacts could fail.