770M Knowledge Base
Breadcrumbs

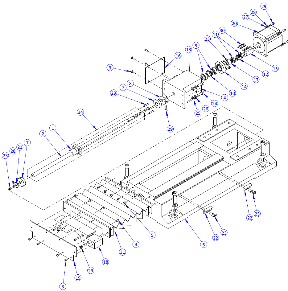
Y-Axis Assembly - 770M

image-20251210-163551.png

Description

Alternative Part Number

Quantity

1

770 X-Y Ball Nut (PN 38871)1

1

2

770 Y-Axis Ball Screw (PN 38870)1

1

3

Screw, Pan Head Machine, M5 × 0.8 - 10 (PN 30417)

McMaster-Carr: 92095A208

12

4

Pin, Taper, 8 × 30, M5 Thread (PN 31620)

2

5

Screw, Pan Head Machine, M5 × 0.8 - 8 (PN 31599)

McMaster-Carr: 92095A207

5

6

770 Machine Base (PN 31606)

1

7

X/Y-Axis Ball Screw End Bumper, 770 (PN 31613)

2

8

770 Ball Screw End Stop Clamp (PN 31614)

1

9

X-/Y-Axis Ball Screw Angular Contact Bearing (PN 31432)

2

10

770 X-Y Ball Screw Bearing Spacer (PN 31615)

1

11

770 X and Y Ball Screw Preload Nut (PN 31616)

2

12

770 Tab Washer for Preload Nut (PN 31542)

1

13

770 Y-Axis Motor Mount (PN 31617)

1

14

Bearing Cap (PN 31530)

1

15

Ball Screw Coupler (PN 31421)

1

16

770 X-Y Motor Mount Cover Plate (PN 31621)

1

17

Sleeve (PN 31537)

1

18

770 Y-Axis Bellows Holder (PN 31627)

1

19

Y Cover Mounting Plate (PN 31628)

1

20

Y-Axis Motor, 770M (PN 39414)

1

21

Washer, Flat, 5 × 25, 3 mm Thick (PN 31532)

1

22

Y-Axis Limit Switch Flag (PN 30450)

2

23

Screw, Socket Head Cap, M5 × 0.8 - 14 (PN 31563)

McMaster-Carr: 91290A230

8

24

Screw, Socket Head Cap, M8 × 1.25 - 25 (PN 31618)

McMaster-Carr: 91290A432

4

25

Washer, Flat, M8 (PN 30531)

McMaster-Carr: 91166A270

4

26

Washer, Split Lock, M8 (PN 32339)

McMaster-Carr: 91202A238

4

27

Washer, Flat, M5 (PN 39305)

McMaster-Carr: 93475A240

4

28

Washer, Split Lock, M5 (PN 31572)

McMaster-Carr: 91111A124

5

29

Screw, Socket Head Cap, M5 × 0.8 - 20 (PN 30357)

McMaster-Carr: 91290A242

13

30

Screw, Socket Head Cap, M4 × 0.7 - 12 (PN 31360)

McMaster-Carr: 91290A148

4

31

Y-axis Front Way Cover, 770 (PN 31419)

1

32

Screw, Socket Head Cap, M12 × 1.75 - 45 (PN 30349)

McMaster-Carr: 91290A624

4

33

Washer, Flat, M12 (PN 32473)

McMaster-Carr: 91166A290

4

34

Y-Axis Ball Screw Assembly, 770 (PN 31425)

1

Items #1 and #2 sold as assembly #34 PN 31425.